W NJM Architekci zapewniamy kompleksową obsługę inwestycji – od pierwszej koncepcji, przez uzyskanie niezbędnych decyzji, aż po nadzór i przeglądy budowlane. Z nami przejdziesz przez cały proces inwestycyjny bez stresu i zbędnych formalności. Dzięki kompleksowej obsłudze możesz skupić się na swojej wizji, a resztą zajmiemy się my.

Przeglądy budowlane
Przeglądy budowlane okresowe (roczne, pięcioletnie)
Wymagane przepisami prawa budowlanego, a ich brak może skutkować problemami z wypłatą odszkodowania przez firmę ubezpieczeniową.

Dokumentacje projektowe
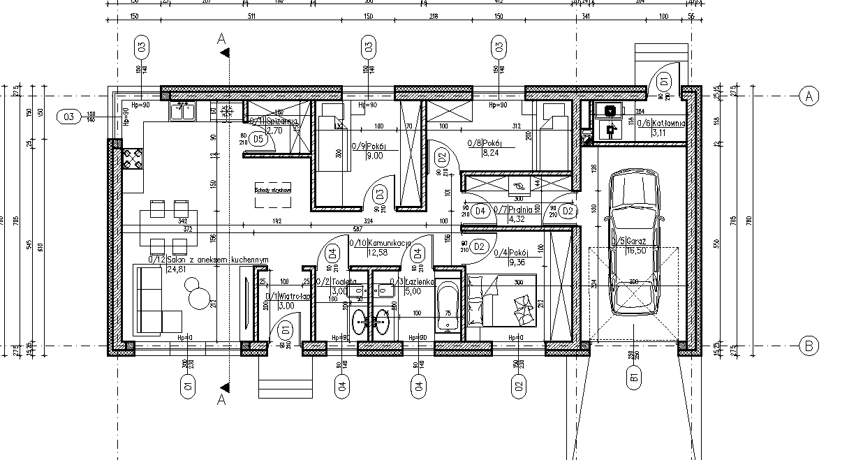
Opracowujemy kompletne projekty architektoniczno-budowlane dla budynków mieszkalnych, usługowych, magazynowych, inwentarskich i innych, a także projekty rozbudowy/ przebudowy/rozbiórki.
Nasze dokumentacje są zawsze zgodne z przepisami i gotowe do złożenia w urzędzie.
Zakres pełnej dokumentacji:
-
Projekt Zagospodarowania Terenu (PZT)
-
Projekt Architektoniczno-Budowlany (PAB)
-
Projekt Techniczny (PT)

Adaptacje gotowych projektów
Dostosowujemy projekty katalogowe do indywidualnych potrzeb inwestora i warunków działki. Dzięki temu zyskujesz funkcjonalny projekt, który łączy sprawdzone rozwiązania z indywidualnym podejściem.

Kompleksowość usług
Zajmujemy się wszystkimi formalnościami – od decyzji o warunkach zabudowy (WZ), po pozwolenie na budowę. Reprezentujemy inwestora przed urzędami i instytucjami, aby cały proces przebiegał sprawnie i bez stresu.

Inwentaryzacje budowlane i podziały lokali
Przygotowujemy szczegółowe inwentaryzacje istniejących budynków, a także dokumentacje do wyodrębniania i niezależności lokali. Nasze opracowania są rzetelne, precyzyjne i zatwierdzane przez urzędy.

Projekty aranżacji ogrodów
Tworzymy koncepcje zagospodarowania terenów wokół domów i obiektów. Projektujemy ogrody funkcjonalne i estetyczne, które stanowią naturalne uzupełnienie architektury budynku.
Co otrzymują Państwo w ramach współpracy:
- indywidualnie dopasowany projekt budowlany,
- wszystkie niezbędne rysunki i opisy zgodne z aktualnymi przepisami prawa budowlanego,
- stały kontakt – jesteśmy dostępni na każdym etapie realizacji, doradzamy i wyjaśniamy wszystkie kwestie techniczne i formalne.
Stwórz łatwo własną witrynę internetową z Webador